82 Fayette StLynn, MA 01902
Due to the health concerns created by Coronavirus we are offering personal 1-1 online video walkthough tours where possible.




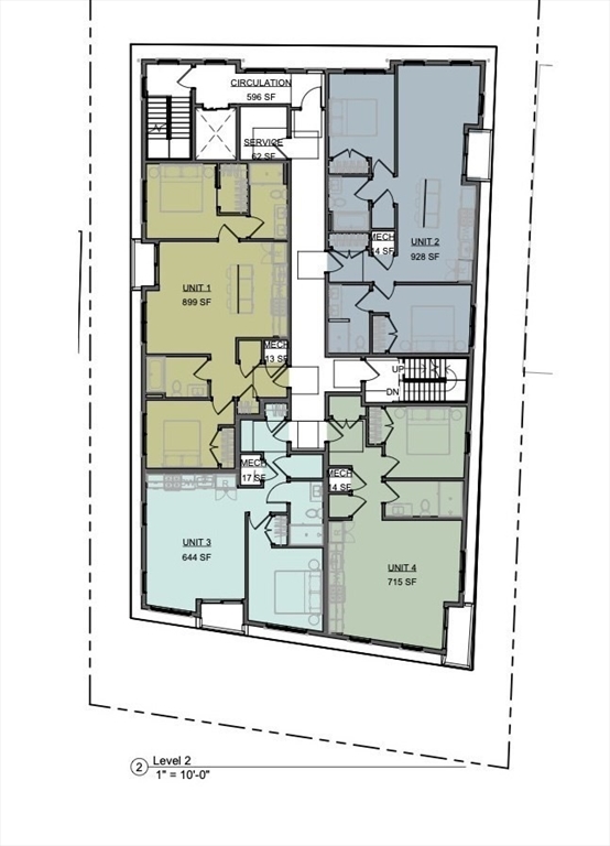
INVESTORS!!! Shovel ready project in Lynn!Prime investment opportunity in Lynn’s high-growth area: 82 Fayette Street is a shovel-ready, fully permitted 8-unit new construction development with foundation work already underway. The building will feature four single-level units on the first floor and four spacious duplexes on the second level, offering a versatile mix of 1, 2, 3 and 4-bedroom layouts to maximize market appeal.All permits are in place, minimizing lead time and development risk. Ideal for investors seeking strong rental income potential or future resale profits, this project capitalizes on Lynn’s ongoing revitalization and high demand for modern housing. The strategic location and modern design ensure broad appeal to renters and buyers alike — positioning you for an attractive ROI.
| yesterday | Listing updated with changes from the MLS® | |
| 3 days ago | Listing first seen on site |
The property listing data and information, or the Images, set forth herein were provided to MLS Property Information Network, Inc. from third party sources, including sellers, lessors, landlords, and public records, and were compiled by MLS Property Information Network, Inc. The property listing data and information, and the Images, are for the personal, non-commercial use of consumers having a good faith interest in purchasing, leasing or renting listed properties of the type displayed to them and may not be used for any purpose other than to identify prospective properties which such consumers may have a good faith interest in purchasing, leasing or renting. MLS Property Information Network, Inc. and its subscribers disclaim any and all representations and warranties as to the accuracy of the property listing data and information, or as to the accuracy of any of the Images, set forth herein.
Last checked 2025-11-09 10:27 AM UTC
Did you know? You can invite friends and family to your search. They can join your search, rate and discuss listings with you.